Descrizione

ULTIMO DISPONIBILE !!!
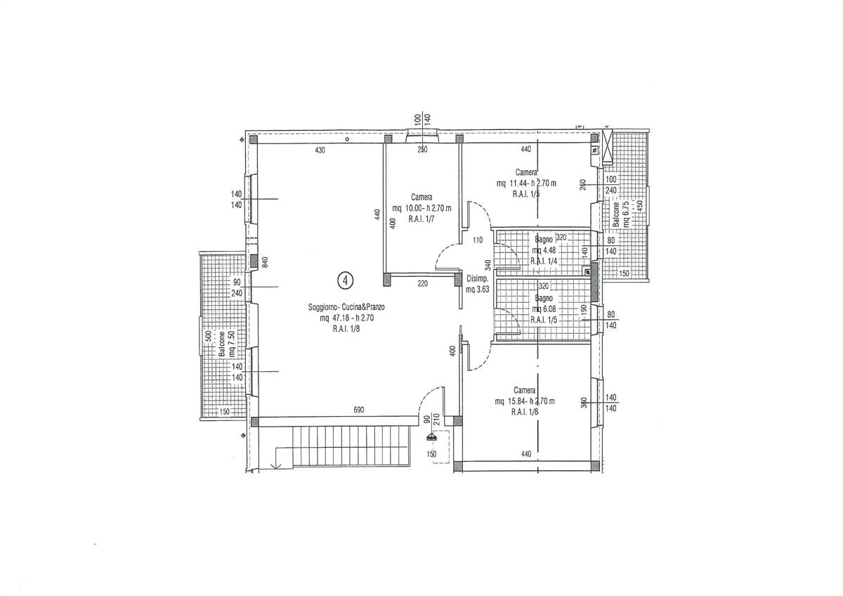
In contesto residenziale moderno e curato, proponiamo in **vendita esclusiva** un ampio quadrilocale di nuova costruzione, situato al primo piano su un unico livello, pensato per offrire comfort, efficienza energetica e qualità abitativa ai massimi livelli.

Composizione interna:

- Zona soggiorno e cucina openspace luminosa e accogliente
- Tre camere da letto, ideali per famiglie o per chi desidera uno studio o una stanza ospiti
- Due bagni moderni con finiture di alta qualità
- Ampio garage doppio in lunghezza al piano scantinato, comodo per due auto e spazio aggiuntivo.

Caratteristiche recniche

- Classe energetica A4: massimo risparmio energetico e comfort termico/acustico
- Finiture di pregio personalizzabili: scegli tu i materiali per rendere la casa davvero tua
- Spazi ben distribuiti e ambienti pensati per la vita quotidiana
Consegna prevista per estate 2026: tempo ideale per pianificare il tuo futuro!

Posizione strategica: zona centrale e ben servita, perfetta per famiglie con comodità dei collegamenti e dei servizi.

Questa soluzione rappresenta il connubio perfetto tra design, efficienza energetica e funzionalità; con la possibilità di personalizzarlo come meglio credete.
Contattaci per maggiori informazioni, planimetrie e appuntamenti in cantiere!

IMMOBILIARE CASTELLO - tel: 045 / 8521438 - Agenzia di Castel d'Azzano (VR) - Via P. Mascagni, 102.

e-mail: immobiliarecastellocda@gmail.com


Caratteristiche principali

Stato Immobile
Nuovo
Grado
Signorile
Lati Liberi
3
Tipo Soggiorno
Soggiorno
Tipo Cucina
A Vista
Riscaldamento
Autonomo
Tipo Impianto
Pavimento
Fonte Energetica
Fotovoltaico
Acqua Calda
Autonoma
Raffrescamento
Split
Infissi
PVC Doppio Vetro
Serramenti
Nuovo
Persiana
Oscurante Legno

Mappa

P. Mascagni 102, Castel d'Azzano (VR)

Cookie preference