Descrizione

Nuovo appartamento in costruzione al piano primo in palazzina di 6 unità!!!
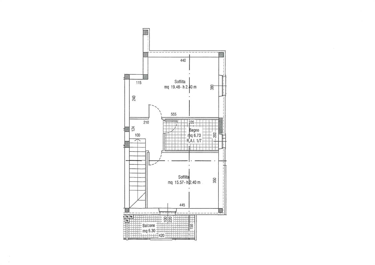
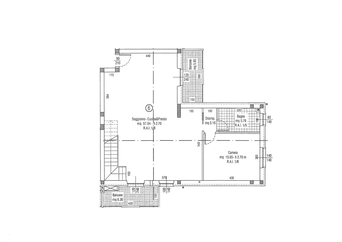
Disposto su due livelli internamente suddiviso in: soggiorno con balcone, cucina con balcone, disimpegno notte, bagno e camera matrimoniale; al piano superiore (che ha un'altezza costante di 2,40 mt) troviamo altre 2 camere grandi e il secondo bagno.

Completa questa fantastica offerta un doppio garage in larghezza!

Edificio ad alto risparmio energetico: riscaldamento a pavimento, cappotto da 10 cm e impianto fotovoltaico da 5 KW, per ridurre i consumi e le spese di gestione.

Questa soluzione rappresenta il connubio perfetto tra design, efficienza energetica e funzionalità; con la possibilità di personalizzarlo come meglio credete.

Contattaci per maggiori informazioni, planimetrie e appuntamenti in cantiere!!!

IMMOBILIARE CASTELLO - tel: 045 / 8521438 - Agenzia di Castel d'Azzano (VR) - Via P. Mascagni, 102.

e-mail: immobiliarecastellocda@gmail.com


Caratteristiche principali

Stato Immobile
Nuovo
Grado
Signorile
Lati Liberi
2
Tipo Soggiorno
Soggiorno
Tipo Cucina
A Vista
Riscaldamento
Autonomo
Tipo Impianto
Pavimento
Fonte Energetica
Fotovoltaico
Acqua Calda
Autonoma
Raffrescamento
Split
Infissi
PVC Doppio Vetro
Serramenti
Nuovo
Persiana
Oscurante Legno

Mappa

P. Mascagni 102, Castel d'Azzano (VR)

Cookie preference